Napfényes otthon Pécelen, hatalmas alagsorral

112 Nyomtatás Ajánlás Facebook

***Eladó családi ház Pécel városközpontban, ideális választás a tágas otthont, kertet, hobbihelyiséget és a nyugodt életet keresőknek!***

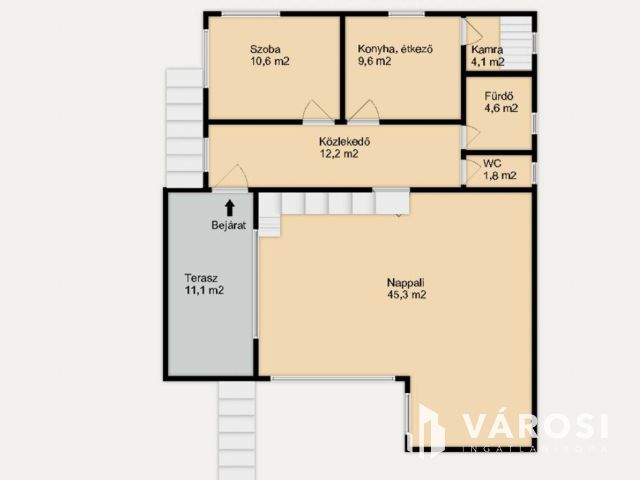
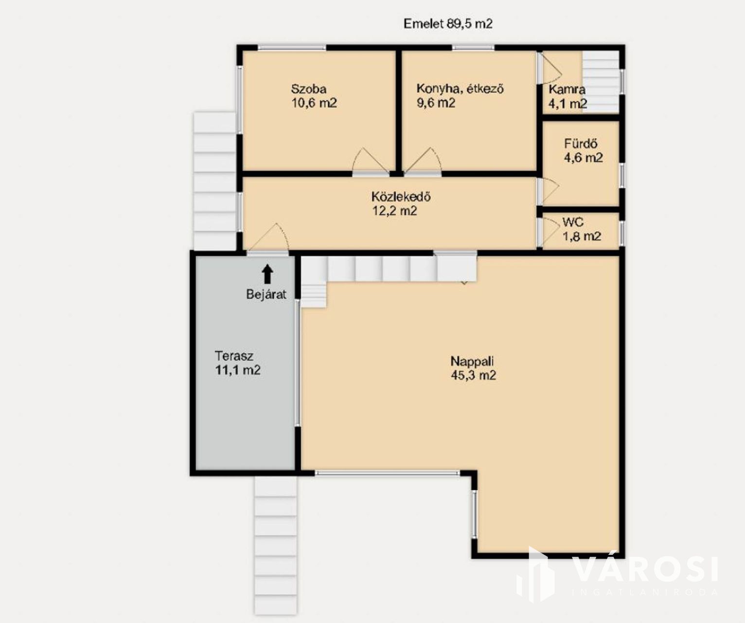
Pécel központjában, egy csendes utcában található ez a tágas, 225 m²-es családi ház, amely 845 m²-es telekkel rendelkezik.

A lakótér az emelten és a tetőtérben került kialakításra. A házban 3 kényelmes szoba és egy nappali található, amelyek mindegyike világos. Két fürdőszoba biztosítja a zavartalan reggeli készülődést, emellett külön WC is rendelkezésre áll. A fűtésről gázkazán és radiátorok, valamint három darab klímaberendezés gondoskodik. Ezek mellett egy kandallóval lehet hangulatosan is fűteni. Az épület egésze alatt alagsor található, amely pazar tároló- vagy hobbihelyiség.

A ház minden részét átjárja a napfény, a tetőtérből panorámás kilátás nyílik. Az ingatlan a 80-as években épült, ezért felújítást igényel. A nyílászárók részben már cserére kerültek.
Villamos teljesítmény gazdagon rendelkezésre áll: 3x16 amper a normál, és további 3x16 amper a "H" tarifa mérőjén.

A lokáció kiváló, hiszen a település intézményei gyalog is könnyen megközelíthetők. Emellett nem kell lemondani a csendről és a tágas kertről sem.

Ne hagyja ki, tekintse meg!

Fábián Péter

Fábián Péter

Ingatlanértékesítő
Zsámbék
+36 (20) 922 0921
Észrevétel a hirdetéssel kapcsolatban
Egy ingatlanos naplója